Praktický byt 2+kk, 43 m²

Teplice - Fibichova

O NEMOVITOSTI

Nabízím k prodeji atraktivní investiční nemovitost – praktický byt 2+kk o výměře 43 m², který zaujme svou ideální dispozicí a řadou klíčových výhod. Díky orientaci na jih, výtahu a bezbariérovému přístupu představuje tato nabídka stabilní investici s potenciálem pravidelného příjmu z podnájmu. Byt je v družstevním vlastnictví u oblíbeného družstva SBD Mír, což jen umocňuje jeho atraktivitu.

Byt a interiér

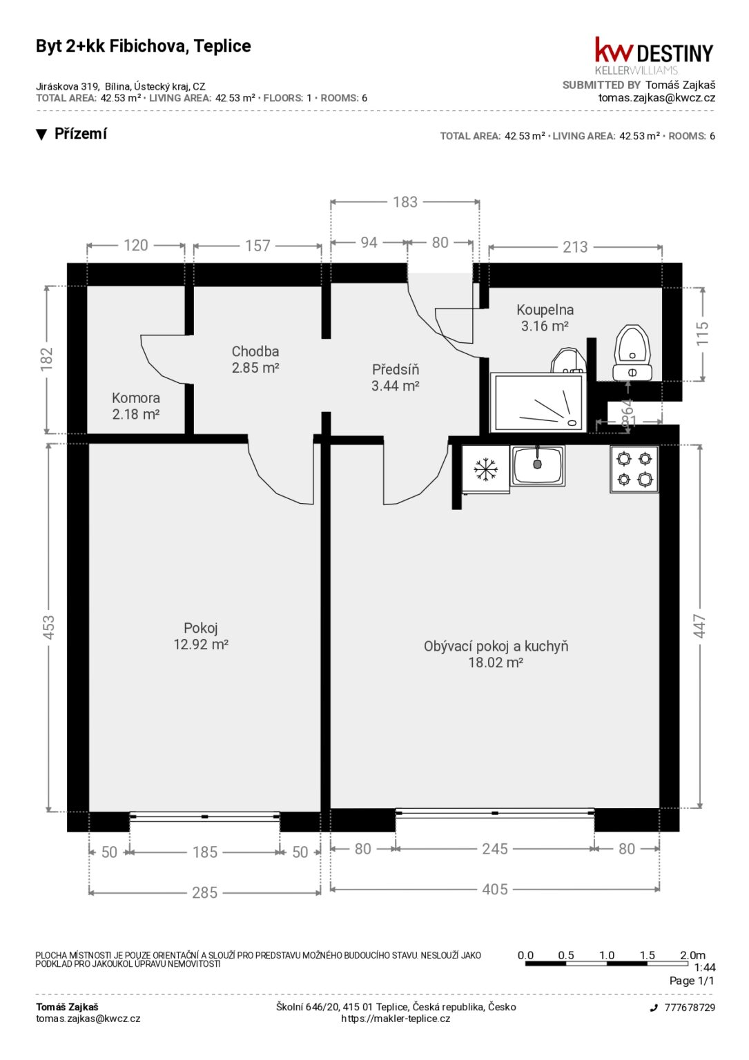
Byt nabízí půvabnou dispozici 2+kk s praktickým uspořádáním, která je velmi žádaná mezi nájemníky. Kuchyňská linka zůstává v původním, ale zachovalém stavu a je vybavena lednicí, mrazákem, elektrickým sporákem a odsavačem par s odtahem do stoupaček. Veškeré vybavení v bytě dle domluvy může a nemusí zůstat. Podlahy jsou převážně pokryty koberci, což dodává interiéru útulný dojem. Koupelna je v původním ale velmi zachovalém stavu. Rozvody vody jsou v PVC a rozvody elektřiny jsou hliníkové. Byt je takto již prakticky připravený rovnou k podnájmu. Případně po menší investici je možné zvýšit výnos investice.

Technický stav domu

Panelový dům, ve kterém se byt nachází, byl pravidelně modernizován (fasáda a plastová okna s dvojskly v roce 2009, střecha 2006, výtah 2011 a bezpečnostní hliníkové vchodové dveře do domu instalovány v roce 2009). Dveře do bytů, splňující bezpečnostní třídu III a byly dělané před pouhým rokem. Dům je vytápěn centrálně a o vyúčtování spotřeby se stará družstvo za pomoci firmy RONICA, s.r.o. V domě je vysokorychlostní internet s rychlostí až 1000 Mbit od Vodafone.

Lokalita a dopravní dostupnost

Nemovitost se nachází na Fibichově ulici a pyšní se výbornou dostupností nejen do centra Teplic, ale i do okolních měst. Občanská vybavenost v bezprostřední blízkosti poskytuje vše potřebné pro pohodlný život. Významnou předností je i vnitroblok – kompletně oplocený a uzamykatelný, který kromě bezpečného parkování nabízí také vlastní hřiště, ideální místo pro rodiny, děti či domácí mazlíčky. 

Náklady a poplatky

Celkové náklady na bydlení činí 3.500 Kč měsíčně vč. fondu oprav 1.220 Kč. Na bytě vázne anuita v přibližné výši 10.300 Kč, která bude splacena 3/2031 – splátka anuity činní 124 Kč měsíčně. Podnájem je možný a je zpoplatněn částkou 605 Kč měsíčně. Převodní poplatek hradí nabyvatel a družstvo neumožňuje převod do osobního vlastnictví.

Doplňující informace

Byt je k dispozici ihned a k nemovitosti náleží také sklepní kóje o rozloze 2 m². V rámci komplexních služeb Vám rád zařídím převod energií nebo pomohu s optimálním financováním.

Pokud hledáte nemovitost s potenciálem stabilního výnosu z podnájmu a kvalitním technickým stavem, neváhejte mě kontaktovat a domluvit si osobní prohlídku.

SDÍLET INZERÁT
Facebook
Poslat známému
WhatsApp
PŘEHLEDNĚ
  • Cena
    Cena Prodáno za 1.300.000 Kč
  • Nemovitost
    Nemovitost Byt
  • Dispozice
    Dispozice 2+kk
  • Rozloha
    Rozloha 43 m²
  • Lokalita
    Lokalita Fibichova, Teplice
  • Poschodí
    Poschodí 8. z 8
  • Stavba
    Stavba Panelová
  • Stav objektu
    Stav objektu Velmi dobrý
  • Vybavení
    Vybavení Ano
  • Elektřina
    Elektřina 230V - hliník
  • Voda
    Voda Veřejný vodovod
  • Vytápění
    Vytápění Centrální dálkové
  • Odpad
    Odpad Kanalizace
  • Výtah
    Výtah Ano
  • Parkování
    Parkování Vnitroblok
  • Sklep
    Sklep Kóje 2 m²
  • K dispozici od
    K dispozici od Ihned
  • PENB
    PENB D - 139 kWh/m2
DOKUMENTY
SDÍLET INZERÁT
CENA
Prodáno za 1.300.000 Kč

Pokud i Vy chcete výhodně a bez starostí prodat svou nemovitost, rád vám s tím pomohu.

Kontaktní formulář

Pronájem nemovitosti

Chcete si zajistit pravidelný příjem vaší investice a ještě k tomu tím procesem projít s úsměvem na tváři? Není problém, rád vám s tím pomohu. 

Vím, jak je důležité mít ve své nemovitosti slušného nájemníka, který bude nejen pravidelně platit, ale také bude v nemovitosti co nejdelší možnou dobu, aby zhodnocení vaší investice bylo co nejvyšší.

Co vše pro vás zařídím?

  • Kalkulaci maximálního možného nájemného dle zvolené strategie
    Kalkulaci maximálního možného nájemného dle zvolené strategie
  • Přípravu nemovitosti na focení a inzerci
    Přípravu nemovitosti na focení a inzerci
  • Kvalitní fotografie a 3D dispoziční plánek
    Kvalitní fotografie a 3D dispoziční plánek
  • Propagaci na nejvyhledávanějších serverech a sociálních sítích
    Propagaci na nejvyhledávanějších serverech a sociálních sítích
  • Vyhledání vhodného nájemníka
    Vyhledání vhodného nájemníka
  • Prověření zájemců v registrech dlužníků
    Prověření zájemců v registrech dlužníků
  • Smluvní dokumentaci na míru
    Smluvní dokumentaci na míru
  • Pravidelné informace o průběhu procesu a dalších postupů
    Pravidelné informace o průběhu procesu a dalších postupů
  • Předání nemovitosti včetně přepisu energií
    Předání nemovitosti včetně přepisu energií

Líbila by se vám taková spolupráce? Vyplňte formulář a já se vám do 24 hodin ozvu. Nechcete čekat? Zavolejte mi na číslo +420 777 678 729. K zastižení jsem od pondělí do pátku od 8 do 18 hod.

Rád bych vás před vyplněním ujistil, že naše první schůzka je zcela ZDARMA a NEZÁVAZNÁ.

Konzultace ZDARMA

Hledáte odpovědi na otázky podobné těm, co jsou níže? Jsem zde pro vás! Pro setkání stačí vyplnit formulář a nebo volejte na číslo 777 678 729.

  • Plánujete prodej nemovitosti a chcete se na toto životní rozhodnutí správně připravit?
  • Přemýšlíte o investování do nemovitostí a chcete se poradit o výnosnosti a na jaké lokality se zaměřit nebo naopak kterým se vyhnout?
  • Potřebovali byste se poradit před koupí svého vysněného bydlení? 

Rád bych vás před vyplněním ujistil, že první hodina konzultace je zcela ZDARMA a NEZÁVAZNÁ. Nejedná se o objednávku mých služeb.

Odhad ceny nemovitosti ZDARMA!

Dobrý den

Přihlaste se do mého realitního zpravodaje a získejte svůj odhad tržní hodnoty nemovitosti zdarma!

Realitní zpravodaj obsahuje:

  • Přehled o každé nově inzerované nemovitosti
  • Informace ze světa realit
  • Rady, které Vám mohou ušetřit čas a peníze