Byt 1+1 po kompletní rekonstrukci
v klidné lokalitě
Lahošť
Toužíte po bydlení v klidné lokalitě, kde si můžete užívat komfortu většího města a pohody menší obce? Přesně pro vás je tu nabídka družstevního bytu 1+1 o rozloze 33 m² v malebné obci Lahošť – navíc s jedinečnou možností rozšířit dispozici na 2+1 díky nevyužitému prostoru v podkroví. Tento cihlový dům bez výtahu prošel kompletní renovací v roce 2022 a vy tak máte možnost být první, kdo se do zrekonstruovaného bytu nastěhuje.
Perfektní stav po rekonstrukci:
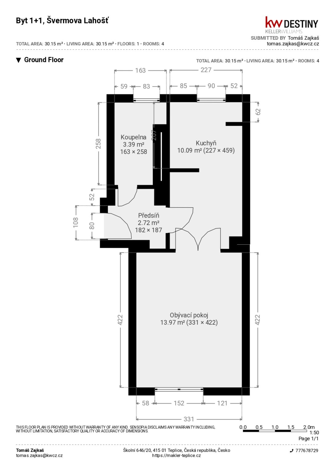
Byt se nachází ve 2. patře a je po kompletní rekonstrukci, zahrnující nové podlahy, výmalby, kuchyňskou linku s kombinovaným sporákem a lednicí. V kuchyni je dostatek prostoru pro další spotřebiče, pokud by byly potřeba.
Také proběhla kompletní rekonstrukce koupelny včetně nové dlažby, štuku, výmalby a vany. V obývacím pokoji je parketová podlaha, která dodává místnosti útulnost, v kuchyni plovoucí podlaha a v chodbě a koupelně je dlažba. Od rekonstrukce zde nikdo nebydlel, takže si můžete užít zcela nový a neopotřebovaný interiér.
Příjemná orientace a dispozice:
Vstup do hlavní obytné místnosti je přes bílé dvojité skleněné dveře, díky nimž je byt světlý a vzdušný. Obývací pokoj je orientován na severovýchod a v kombinaci se skleněnými dveřmi je zde příjemné světlo po celý den. Kuchyň s koupelnou směřují na jihozápad, kde si můžete vychutnávat večerní slunce. Dispozice bytu je praktická a nabízí pohodlí jak pro jednotlivce, tak pro páry.
Možnost zvětšení bytu:
Velkou výhodou této nemovitosti je možnost rozšíření bytu o další místnost o přibližné výměře 17,5 m² (cca 8,8 × 2 m), která se nachází za jednou ze stěn a v současnosti slouží jako půdní prostor. Po zateplení a stavební úpravě může vzniknout plnohodnotný pokoj a tím se z bytu 1+1 stává byt 2+1 s výrazně vyšší hodnotou – bez navýšení měsíčních poplatků. Úprava je možná na náklady nového vlastníka a obdobné řešení již bylo v domě realizováno.
Klidná lokalita s výhodami:
Lahošť je menší obec, která kombinuje klid venkova s výhodami městského života. Základní občanská vybavenost je přímo v obci, a pro kompletní služby můžete snadno dojet do nedalekého Duchcova či Teplic, kam je skvělá dopravní dostupnost autobusem nebo vlakem.
Vlakové nádraží Duchcov je vzdáleno pouhých 800 metrů a je 5 minut pěšky. Pravidelně sem jezdí vlaky do Chomutova, Teplic, Ústí a Děčína. Ve vzdálenosti 240 metrů je autobusová zastávka se spojem do Duchcova, Oseka a Teplic. V docházkové vzdálenosti od bytu je i vyhledávané jezero Barbora.
Ideální investice pro budoucnost:
Hledáte investici do budoucna pro své děti? Tento byt je skvělou volbou jako startovací bydlení pro mladé páry nebo jednotlivce. Klidná a bezpečná lokalita je ideální pro začínající rodiny. Díky kompletní rekonstrukci je byt připraven k okamžitému nastěhování bez nutnosti dalších úprav.
Doplňující informace k bytu:
Anuita je splacená a převod do osobního vlastnictví družstvo OSBD Teplice neumožňuje. Podnájem bytu je možný. Převodní poplatek na družstvu hradí nabyvatel.
K bytu je k dispozici i nadstandardně velká zděná sklepní kóje.
Měsíční předpis nájemného činí 2.891 Kč měsíčně včetně zálohy na vodné a stočné.
Elektřina bude převedena na nového majitele a vychází při běžné spotřebě na 1.200 Kč. Plyn je momentálně odpojený, ale není problém jej znovu zavést do bytu v případě potřeby.
V rámci komplexních služeb vám rád zařídím i převod energií a nebo optimální financování.
Neváhejte a domluvte si prohlídku tohoto bytu, který kromě kompletní rekonstrukce nabízí i možnost unikátního rozšíření za minimální náklady – potenciál, který v této lokalitě jen tak nenajdete!
-
Cena Prodáno za 1.300.000 Kč -
Nemovitost Byt -
Dispozice 1+1 -
Rozloha 33 m² -
Lokalita Švermova, Lahošť -
Poschodí 3. ze 3 -
Vybavení Ano -
Elektřina 230V - měď -
Voda Veřejný vodovod -
Plyn Není - může být -
Výtah Není -
Lodžie Není -
Sklep Ano (4 m²) -
K dispozici od Ihned -
PENB D - 209 kWh/m2
Pokud i Vy chcete výhodně a bez starostí prodat svou nemovitost, rád vám s tím pomohu.



























