Rodinný dům se dvěma samostatnými bytovými jednotkami​​

Hrob

O NEMOVITOSTI
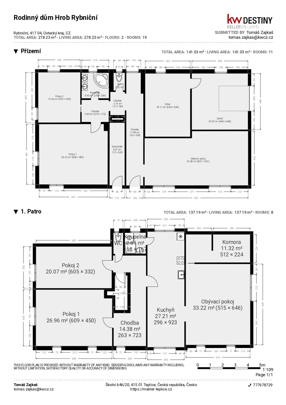
Pokud hledáte prostorné dvougenerační bydlení v klidné lokalitě s dobrou dostupností, máme pro vás rodinný dům v Hrobu s dispozicí 6+2, zastavěnou plochou 190 m² a celkovým pozemkem 676 m². Tento částečně podsklepený dům je rozdělen na dvě bytové jednotky s vlastním vstupem a měřiči energií, což vám zajistí maximální soukromí a komfort pro více generací. Nebo třeba jako investice k pronájmu jedné části nebo klidně obou.

Stav domu je velmi dobrý díky zateplení polystyrenem, hydroizolaci nopovou fólií a kvalitní konstrukcí. Střecha s asfaltovým šindelem byla obnovena přibližně před 15 lety a okna jsou plastová s dvojskly, což spolu s izolací zajišťuje příjemnou vnitřní teplotu a nižší náklady na bydlení. Dům má také plynovou přípojku, což v budoucnu umožňuje přejít na pohodlnější plynové vytápění a ohřev vody. Prozatím topení zajišťuje automatický kotel na uhlí s podavačem o kapacitě 120 litrů. Ohřev vody je řešen dvěma samostatnými elektrickými bojlery (120 l pro každou jednotku).

Interiér domu je po rekonstrukci, která zahrnovala modernizaci kuchyní v obou bytech, výměnu podlah (kombinace plovoucí podlahy a keramické dlažby) a renovaci koupelen s oddělenými toaletami. Obě kuchyně jsou navrženy s důrazem na praktičnost a styl, což ocení každý nadšený kuchař. Byt v přízemí má 95 m2 podlahovou plochu a je o dispozici 3+kk. Byt v patře je o dispozici 3+1 a má 137 m2. V celém domě jsou rozvody vody z PVC a rozvody tepla a elektřiny v mědi, což zajišťuje kvalitní a bezproblémový provoz. Stropy byly sníženy sádrokartonem pro lepší izolaci a estetiku a veškeré stěny jsou omítnuté a vymalované.

Exteriér domu přináší vše, co byste mohli potřebovat – garáž přístupnou z ulice o rozloze 20 m² s připojeným prostorem pro dílnu nebo sklad (18 m²) a dvě zakopané 1.000litrové nádrže na dešťovou vodu pro ekologické využití. Také nabízí pergolu (16 m²) pro venkovní posezení s příteli a rodinou.

Lokalita v Hrobu kombinuje klid s perfektní dostupností. V místě najdete základní občanskou vybavenost a do Teplic dorazíte autem za 15 minut nebo případně autobusem, který jezdí každých 30 minut. Milovníci přírody ocení množství rekreačních možností, včetně turistických a cyklistických tras do Krušných hor, lyžařského střediska Bouřňák nebo jezera Barbora.

Náklady na bydlení jsou přívětivé – přibližně 6.000 Kč měsíčně na jednu bytovou jednotku pro čtyřčlennou rodinu. Topení lze snadno přizpůsobit – pro pohodlí můžete využít automatický kotel na uhlí nebo přejít na plyn, pokud byste do budoucna preferovali plynové vytápění.

Tento dům nabízí jedinečné zázemí pro vícečlennou rodinu nebo dvougenerační bydlení s možností dalších úprav dle vašich přání.

V případě vícero zájemců si majitel vyhrazuje právo prodat nemovitost nejvýhodnější nabídce a vybrat kupce na základě jím zvolených kritérií.

Neváhejte a přijďte si prohlédnout tento rodinný dům, který nabízí více variant využití a kombinuje soukromí, praktičnost a moderní komfort.

SDÍLET INZERÁT
Facebook
Poslat známému
WhatsApp
PŘEHLEDNĚ
  • Cena
    Cena Prodáno za 6.500.000 Kč
  • Nemovitost
    Nemovitost Rodinný dům
  • Dispozice
    Dispozice 2x 3+1
  • Rozloha
    Rozloha 300 m²
  • Pozemek
    Pozemek 676 m²
  • Lokalita
    Lokalita Rybniční, Hrob
  • Počet poschodí
    Počet poschodí 2 NP a 1 PP
  • Stavba
    Stavba Cihla a kámen
  • Stav objektu
    Stav objektu Velmi dobrý
  • Vybavení
    Vybavení Částečné
  • Elektřina
    Elektřina 230V - měď
  • Plyn
    Plyn Přípojka hotová
  • Voda
    Voda Veřejný vodovod
  • Vytápění
    Vytápění Tuhá paliva - uhlí
  • Odpad
    Odpad Kanalizace
  • Garáž
    Garáž Pro jedno auto
  • Sklep
    Sklep Ano - cca 30 m²
  • K dispozici od
    K dispozici od Ihned
  • PENB
    PENB Připravujeme
DOKUMENTY
SDÍLET INZERÁT
DISPOZIČNÍ PLÁN
LOKALITA
CENA
Prodáno za 6.500.000 Kč

Pokud i Vy chcete výhodně a bez starostí prodat svou nemovitost, rád vám s tím pomohu.

Kontaktní formulář

Pronájem nemovitosti

Chcete si zajistit pravidelný příjem vaší investice a ještě k tomu tím procesem projít s úsměvem na tváři? Není problém, rád vám s tím pomohu. 

Vím, jak je důležité mít ve své nemovitosti slušného nájemníka, který bude nejen pravidelně platit, ale také bude v nemovitosti co nejdelší možnou dobu, aby zhodnocení vaší investice bylo co nejvyšší.

Co vše pro vás zařídím?

  • Kalkulaci maximálního možného nájemného dle zvolené strategie
    Kalkulaci maximálního možného nájemného dle zvolené strategie
  • Přípravu nemovitosti na focení a inzerci
    Přípravu nemovitosti na focení a inzerci
  • Kvalitní fotografie a 3D dispoziční plánek
    Kvalitní fotografie a 3D dispoziční plánek
  • Propagaci na nejvyhledávanějších serverech a sociálních sítích
    Propagaci na nejvyhledávanějších serverech a sociálních sítích
  • Vyhledání vhodného nájemníka
    Vyhledání vhodného nájemníka
  • Prověření zájemců v registrech dlužníků
    Prověření zájemců v registrech dlužníků
  • Smluvní dokumentaci na míru
    Smluvní dokumentaci na míru
  • Pravidelné informace o průběhu procesu a dalších postupů
    Pravidelné informace o průběhu procesu a dalších postupů
  • Předání nemovitosti včetně přepisu energií
    Předání nemovitosti včetně přepisu energií

Líbila by se vám taková spolupráce? Vyplňte formulář a já se vám do 24 hodin ozvu. Nechcete čekat? Zavolejte mi na číslo +420 777 678 729. K zastižení jsem od pondělí do pátku od 8 do 18 hod.

Rád bych vás před vyplněním ujistil, že naše první schůzka je zcela ZDARMA a NEZÁVAZNÁ.

Konzultace ZDARMA

Hledáte odpovědi na otázky podobné těm, co jsou níže? Jsem zde pro vás! Pro setkání stačí vyplnit formulář a nebo volejte na číslo 777 678 729.

  • Plánujete prodej nemovitosti a chcete se na toto životní rozhodnutí správně připravit?
  • Přemýšlíte o investování do nemovitostí a chcete se poradit o výnosnosti a na jaké lokality se zaměřit nebo naopak kterým se vyhnout?
  • Potřebovali byste se poradit před koupí svého vysněného bydlení? 

Rád bych vás před vyplněním ujistil, že první hodina konzultace je zcela ZDARMA a NEZÁVAZNÁ. Nejedná se o objednávku mých služeb.

Odhad ceny nemovitosti ZDARMA!

Dobrý den

Přihlaste se do mého realitního zpravodaje a získejte svůj odhad tržní hodnoty nemovitosti zdarma!

Realitní zpravodaj obsahuje:

  • Přehled o každé nově inzerované nemovitosti
  • Informace ze světa realit
  • Rady, které Vám mohou ušetřit čas a peníze