Hledáte jedinečné a prostorné bydlení, které nabízí víc než jen obyčejný byt, a to vše s perfektní dostupností do Prahy? Představuji vám pronájem nadstandardního mezonetového bytu 3+kk o velkorysé podlahové ploše 86 m². Byt se nachází v Tuchoměřicích na ulici Hlavní a nabízí stylové a vzdušné bydlení, které vás okouzlí svou atmosférou a chytrou dispozicí.
Byt a interiér
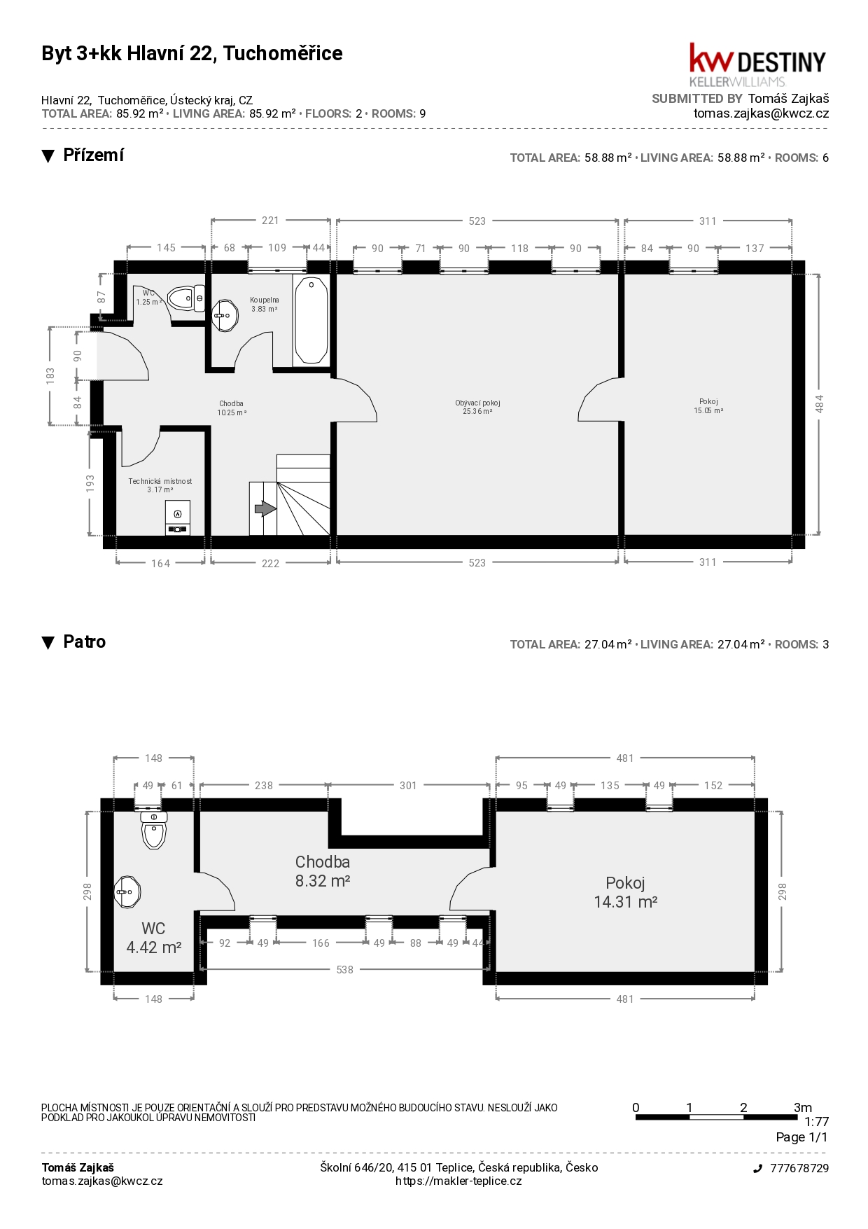
Po vstupu do bytu se ocitnete v prostorné chodbě, která je centrálním bodem celého přízemí. Z ní vedou elegantní dřevěné schody do horního patra a zároveň jsou odsud přístupné všechny ostatní místnosti v přízemí: samostatná toaleta, praktická technická místnost s plynovým kotlem, koupelna s vanou a srdce celého bytu – velkorysý obývací pokoj s kuchyňským koutem. Kuchyňský kout je vybaven elektrickou varnou deskou, odsavačem par, vestavnou myčkou a navíc tlumení dorazů dvířek a šuplíků. Z obývacího pokoje pak vede vstup do samostatného neprůchozího pokoje.
V patře se nachází galerie s krásným výhledem do obývacího pokoje, která propojuje další samostatnou místnost – ideální pro druhou ložnici či pokoj pro hosty. Pro maximální pohodlí je zde k dispozici i druhá toaleta s umyvadlem. Díky kombinaci klasických a střešních oken je celý prostor nádherně prosvětlený a působí velmi vzdušně po celý den. V domě je dostupné internetové připojení o rychlosti až 300 Mbit/s.
Technický stav domu
Dům, ve kterém se byt nachází, má novou zateplenou střechu a je osazen plastovými okny s dvojskly, což zajišťuje nízké provozní náklady. Samotný byt prošel před deseti lety kompletní a zdařilou rekonstrukcí a pro nového nájemce je navíc čerstvě vymalován bílou barvou, a to včetně hlavní chodby domu.
Lokalita a dopravní dostupnost
Lokalita je naprosto ideální pro pohodlné bydlení s rychlým spojením do velkoměsta. Přímo před domem se nachází autobusová zastávka, ze které se díky častým spojům dostanete na stanici metra A – Nádraží Veleslavín za přibližně 15 minut. Cesta autem do centra Prahy zabere zhruba 25 minut. V přízemí domu naleznete samoobsluhu pro každodenní nákupy. K bytu je možné si za 1.000 Kč měsíčně pronajmout vlastní parkovací stání v uzavřeném areálu.
Doplňující informace
Byt je připraven k nastěhování od října. Majitelé jsou vstřícní k domácím mazlíčkům, kteří jsou zde po domluvě vítáni. V rámci komplexních služeb vám rád pomohu s převodem energií.
Tento mezonetový byt je skvělou volbou pro ty, kteří hledají nadstandardní a stylové bydlení s výbornou dostupností do Prahy. Nenechte si ujít tuto jedinečnou příležitost a domluvte si prohlídku – těším se na vás!
Teplo a ohřev vody: 3.000 Kč (plyn na nájemníka)
Elektřina: 1.200 Kč (psaná na nájemníka)
Voda: 700 Kč (za každou osobu)
Úklid a osvětlení spol. prostor: 200 Kč
Odvoz komunálního odpadu: 100 Kč
- Cena Pronajato za 21.500 Kč
- Nemovitost Byt
- Dispozice 3+kk
- Rozloha 86 m²
- Lokalita Hlavní, Tuchoměříce
- Poschodí 1. a 2. ze 2
- Stavba Cihla a kámen
- Stav objektu Velmi dobrý
- Voda Veřejný vodovod
- Vytápění Plynový kotel
- Odpad Kanalizace
- Parkování V areálu
- K dispozici od Ihned

Pokud i Vy chcete výhodně a bez starostí pronajmout svou nemovitost, rád vám s tím pomohu.