Kompaktní byt 1+1

Teplice - centrum

O NEMOVITOSTI

Hledáte kompaktní a praktické bydlení v centru města s výborným dopravním spojením do Prahy? Nabízím k pronájmu útulný byt o dispozici 1+1 a výměře 30 m², který se nachází ve 3. nadzemním podlaží cihlového domu na Masarykově třídě v Teplicích. Byt je ideální pro jednotlivce, pár nebo studenta, který pravidelně dojíždí do hlavního města.

Byt a interiér
Byt disponuje světlým obývacím pokojem s plovoucí podlahou a praktickým úložným prostorem ve formě vyvýšeného patra vhodného pro spaní, které elegantně odděluje ložnicovou část od obytné. Kuchyňská linka je moderní, vybavená kombinovaným sporákem a dostatkem úložného prostoru. Koupelna prošla rekonstrukcí a nabízí sprchový kout, toaletu a prostor pro pračku i sušičku. V předsíni a koupelně je položena keramická dlažba. Předsíň je navíc prostorná a nabízí možnost umístění dalších skříní pro rozšíření úložného prostoru.

Technický stav a vybavení
Byt je ve velmi dobrém stavu. Plastová okna s dvojskly zajišťují tepelnou i zvukovou izolaci, vytápění je dálkové pro pohodlný provoz bez starostí. Vstupní i interiérové dveře jsou dřevěné. V bytě jsou vnitřní žaluzie a možnost uchycení garnýží pro závěsy.

Dům a lokalita
Cihlový dům bez výtahu se nachází jen 3 minuty chůze od samotného centra Teplic. Vše potřebné najdete v bezprostřední blízkosti – obchody, služby, kavárny i kulturní zařízení. Zastávky MHD a meziměstských autobusů (včetně přímého spoje do Prahy) jsou v docházkové vzdálenosti.

Shrnutí
Byt v osobním vlastnictví nabízí pohodlné a moderní bydlení v srdci Teplic s výbornou dostupností a možností okamžitého nastěhování. Díky výhodné poloze a praktickému řešení interiéru včetně vyvýšeného prostoru na spaní je ideální volbou pro ty, kdo hledají cenově dostupné a stylové bydlení s výborným napojením na Prahu.

Neváhejte mě kontaktovat a domluvit si prohlídku – rád vám tento zajímavý byt osobně ukážu.

Měsíční platby:
Teplo, ohřev vody a plyn na vaření: 1.150 Kč
Voda: 600 Kč/os.
Úklid a osvětlení společných prostor: 250 Kč
Elektřina: 1.500 Kč (psaná na nájemníka)
PŘEHLEDNĚ
  • Cena
    Cena Pronajato za 7.500 Kč
  • Nemovitost
    Nemovitost Byt
  • Dispozice
    Dispozice 1+1
  • Rozloha
    Rozloha 30 m²
  • Lokalita
    Lokalita Masarykova tř., Teplice
  • Poschodí
    Poschodí 3. ze 4
  • Stavba
    Stavba Cihlová
  • Stav objektu
    Stav objektu Velmi dobrý
  • Plyn
    Plyn Ano - na vaření
  • Vytápění
    Vytápění Lokální na patro
  • K dispozici od
    K dispozici od 1.5.2025
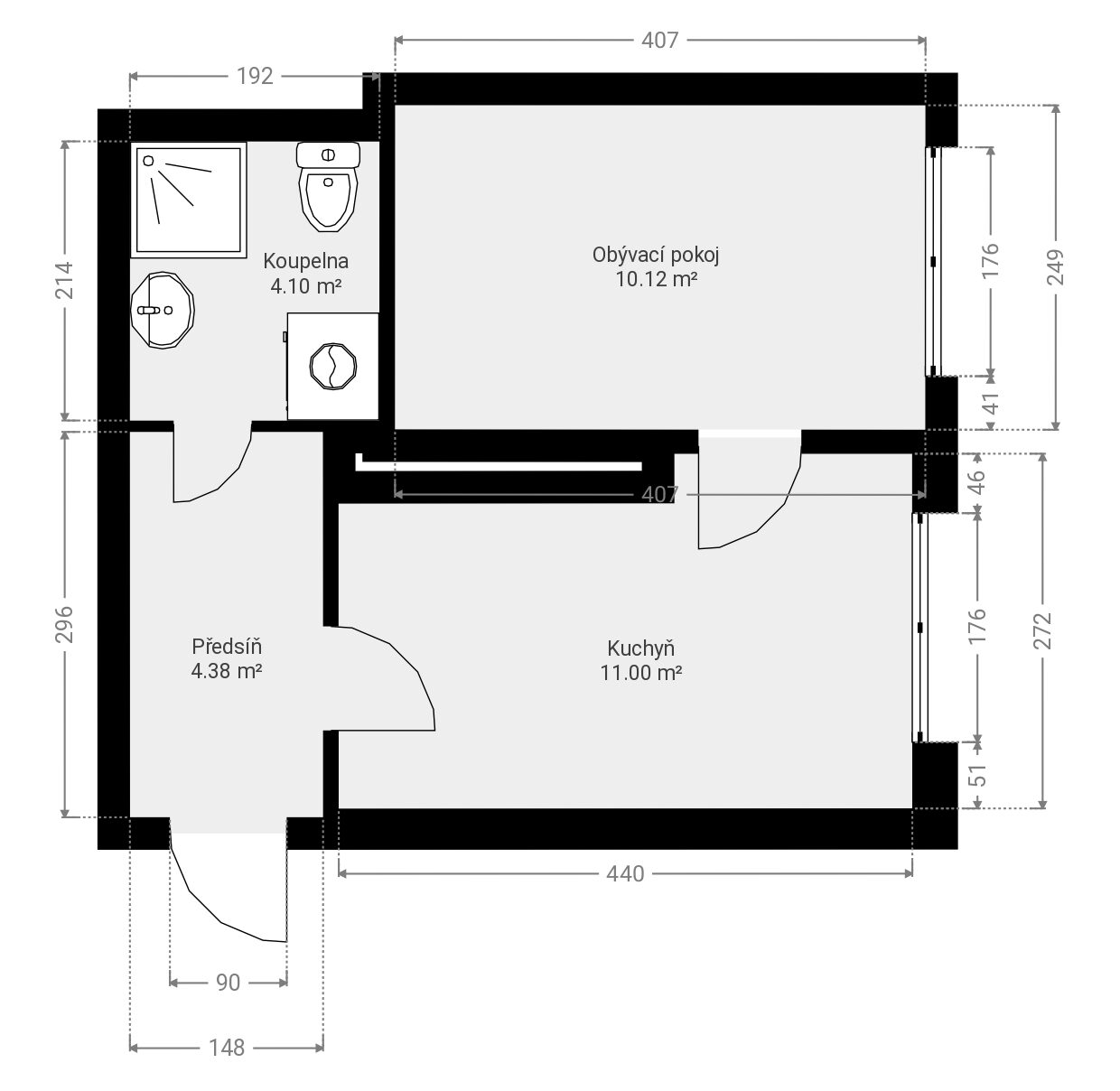
PŮDORYS
LOKALITA
CENA
Pronajato za 7.500 Kč

Pokud i Vy chcete výhodně a bez starostí pronajmout svou nemovitost, rád vám s tím pomohu.

Kontaktní formulář

Pronájem nemovitosti

Chcete si zajistit pravidelný příjem vaší investice a ještě k tomu tím procesem projít s úsměvem na tváři? Není problém, rád vám s tím pomohu. 

Vím, jak je důležité mít ve své nemovitosti slušného nájemníka, který bude nejen pravidelně platit, ale také bude v nemovitosti co nejdelší možnou dobu, aby zhodnocení vaší investice bylo co nejvyšší.

Co vše pro vás zařídím?

  • Kalkulaci maximálního možného nájemného dle zvolené strategie
    Kalkulaci maximálního možného nájemného dle zvolené strategie
  • Přípravu nemovitosti na focení a inzerci
    Přípravu nemovitosti na focení a inzerci
  • Kvalitní fotografie a 3D dispoziční plánek
    Kvalitní fotografie a 3D dispoziční plánek
  • Propagaci na nejvyhledávanějších serverech a sociálních sítích
    Propagaci na nejvyhledávanějších serverech a sociálních sítích
  • Vyhledání vhodného nájemníka
    Vyhledání vhodného nájemníka
  • Prověření zájemců v registrech dlužníků
    Prověření zájemců v registrech dlužníků
  • Smluvní dokumentaci na míru
    Smluvní dokumentaci na míru
  • Pravidelné informace o průběhu procesu a dalších postupů
    Pravidelné informace o průběhu procesu a dalších postupů
  • Předání nemovitosti včetně přepisu energií
    Předání nemovitosti včetně přepisu energií

Líbila by se vám taková spolupráce? Vyplňte formulář a já se vám do 24 hodin ozvu. Nechcete čekat? Zavolejte mi na číslo +420 777 678 729. K zastižení jsem od pondělí do pátku od 8 do 18 hod.

Rád bych vás před vyplněním ujistil, že naše první schůzka je zcela ZDARMA a NEZÁVAZNÁ.

Konzultace ZDARMA

Hledáte odpovědi na otázky podobné těm, co jsou níže? Jsem zde pro vás! Pro setkání stačí vyplnit formulář a nebo volejte na číslo 777 678 729.

  • Plánujete prodej nemovitosti a chcete se na toto životní rozhodnutí správně připravit?
  • Přemýšlíte o investování do nemovitostí a chcete se poradit o výnosnosti a na jaké lokality se zaměřit nebo naopak kterým se vyhnout?
  • Potřebovali byste se poradit před koupí svého vysněného bydlení? 

Rád bych vás před vyplněním ujistil, že první hodina konzultace je zcela ZDARMA a NEZÁVAZNÁ. Nejedná se o objednávku mých služeb.

Odhad ceny nemovitosti ZDARMA!

Dobrý den

Přihlaste se do mého realitního zpravodaje a získejte svůj odhad tržní hodnoty nemovitosti zdarma!

Realitní zpravodaj obsahuje:

  • Přehled o každé nově inzerované nemovitosti
  • Informace ze světa realit
  • Rady, které Vám mohou ušetřit čas a peníze